Menü

Unser neues Premium-Neubauprojekt ist gestartet!

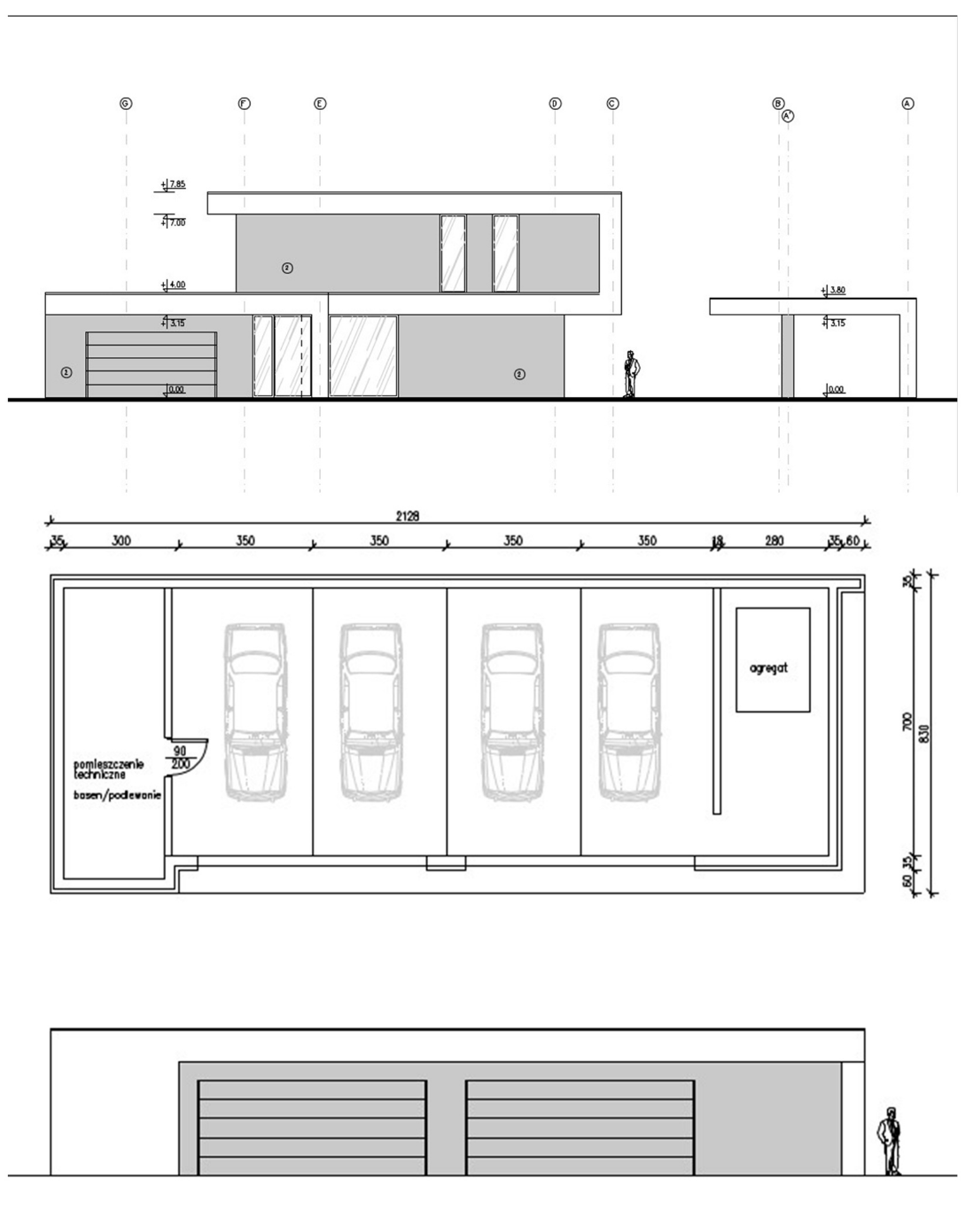
Dieses Einfamilienhaus entsteht im Kundenauftrag – modern, klar strukturiert und architektonisch auf höchstem Niveau. Mit seiner eleganten Linienführung, den großzügigen Fensterflächen und der klaren Formensprache zeigt das Projekt, wie moderner Wohnraum im Premium-Segment aussehen kann.

Viele denken bei einem Neubau sofort an komplizierte Abläufe, unzählige Gewerke und eine Menge Koordination. Genau hier setzt Bausanierung-BZ als Generalunternehmer an. Für dieses Projekt übernehmen wir die komplette Ausführung: schlüsselfertig, sorgfältig geplant und mit unseren qualifizierten Partnern umgesetzt. So entsteht ein Zuhause, das im Design ebenso überzeugt wie in der Qualität – und der Kunde bekommt alles aus einer Hand.

Das Gebäude wird in traditionell verbesserter Bauweise erstellt: zwei oberirdische Geschosse, voll unterkellert, solide Stahlbetonkonstruktion, modernes Flachdach und eine komplett zeitgemäße Fassadengestaltung. Dazu kommen hochwertige Außenbereiche wie eine große Terrasse mit steingestützten Belägen und eine klare, ruhige Architektur, die dem Haus seine exklusive Ausstrahlung verleiht.

Unser Anspruch: Premium-Bauqualität, transparente Abläufe und ein Rundum-Sorglos-Paket – damit unsere Kunden am Ende nicht nur ein Haus besitzen, sondern ein echtes Zuhause.

Du willst ebenfalls ein modernes Einfamilienhaus bauen – hochwertig, stressfrei und schlüsselfertig? Kontaktiere uns – wir beraten dich gerne und unverbindlich!
Bausanierung-BZ GmbH als Generalunternehmen lässt einige Gewerke von qualifizierten Part-Subunternehmen ausführen.